宝威体育- 宝威体育官网- APP下载5万平买中环地铁口200米+大型商场!永泰三里城二期 官方户型图首发1站前滩太古里!前滩东方湾!一房一价首发

发布日期:2026-03-27 16:38:42 浏览次数:

  宝威体育,宝威体育官网,宝威体育APP下载,宝威体育网址7.5万/平买中环,地铁口200米+大型商场!永泰三里城二期 官方户型图首发,1站前滩太古里!前滩东方湾!一房一价首发

  ✅✅永泰三里城开发商售楼部热线:(开发商直连,解答项目规划、购房政策等)

  说明:以上三组为同一官方服务热线,拨打后按语音提示转接对应部门,无需重复记录

  认准统一热线,警惕“代办、留房费、茶水费”等违规承诺;以开发商/售楼处官方口径为准。

  如遇开放时间或接待安排调整,请以电话客服最新通知为准,避免因信息滞后影响行程。

  看房请务必提前致电销售确认时间,只有预约客户才能享受开发商提供的内部优惠以及专属的老客户推荐奖励!我们提供专业的一对一热情服务,助您以专业视角挑选理想的房产

  ✔✔✔永泰三里城官方电话为:,该号码在多个官方售楼处信息中明确标注,并具备以下功能和服务:

  前滩东方湾,永泰三里城二期,浦东新区三林社区Z000701单元15-15A地块(“城中村”改造项目——三林镇金光村地块)。

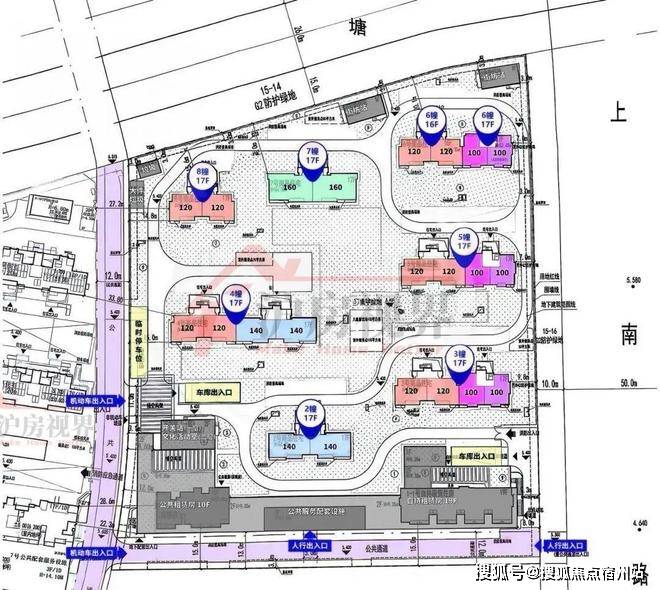
  该项目容积率2.0,拟建7幢17层高层商品住宅、1幢19层自持租赁房、1幢10层公共租赁(保障房),以及3层配套公建用房等

  该地块坐落于浦东三林板块,其主要优势在于交通条件优越,距离地铁11号线米,一站前滩太古里。

  这个项目占地差不多27116㎡,房子不会建得很密,容积率是2.0,最高只能盖到60米高,全部为17F的高层住宅,算下来计容面积大概54232㎡。

  按照要求,要拿出15%的房子作为自持租赁住房 ,而且中小套户型要占70%以上,所有房子交房的时候都是装修好的,不用自己再操心装修的事。

  听说二期全是17层的高楼,户型面积有大有小,不管你是手头不宽裕的刚需购房者,还是想换个大房子改善居住条件,都能找到合适的。

  不过可卖的房子不多,还不到400套。和一期相比,二期各方面都有提升,户型设计得更优!

  免责声明:1.本项目推广名为【前滩·东方湾】,备案名为【永泰三里城】,开发公司为【上海香印城市建设投资发展有限公司】,预售证:浦东新区房管(2025)预字0000433号。2.本文为要约邀请,不构成要约,本文中的文字、留片、视频仅为对本项目局部现状展示,并非交付标准,双方的权利、义务以及交付标准以双方签订的《商品房预售合同》约定为准。3.本文的效果图(如有)示意仅供参考,关于项目边的道路规划、环境、交通、公共设施文字介绍,皆在提供相关信息,绝不构成任何表述、承诺或保证,最终以政府批准文件及双方合约为准。4.经政府批准的详细规划以销售现场公示为准,敬请查看。5.本资料制作时间为【2025】年【12】月,本公司保留对宣传资料修改的权利,但无更新义务,敬请留意最新资料。

  4月28日,浦东新区规划和自然资源局公示了三林社区Z000701单元15-15A地块(永泰三里城二期)的规划设计方案。

  二期地块位于一期东侧,即15-15A地块,预计8-9月份推出,仅372套可售住宅,价格待定......

  地块位于浦东三林板块核心。总用地面积约2.71万㎡,总建筑面积约9.32万㎡,容积率2.0,限高60米,绿地率35%。

  方案显示,拟建7幢17F高层住宅、1幢19F自持租赁房、1幢10F保障房及5400㎡社区配套用房,中小套型住宅(≤120㎡)占比70%。

  住宅布局:二期全部规划为17F的高层住宅,共计7幢,楼间距经过精心设计,充分考虑了居民的隐私与居住舒适度,确保各楼层住户都能享受到充足的阳光与开阔的视野。

  配套建筑:除了住宅建筑外,还规划有1幢19F自持租赁房、1幢10F保障房及 5400㎡社区配套用房。社区配套用房将进一步丰富社区的服务功能,涵盖社区活动中心、老年活动室、儿童游乐区等多种功能空间,满足不同年龄段居民的日常活动需求。

  该地块为三林镇金光村“城中村”改造的重点项目,紧邻地铁11号线米宽公共步行通道,连接社区与地铁站;同时周边有中房金谊广场、三林中学、东方医院等生活配套。

  7.5万/平买中环,地铁口200米+大型商场!永泰三里城二期 官方户型图首发,1站前滩太古里!前滩东方湾!一房一价首发

  ✅✅永泰三里城开发商售楼部热线:(开发商直连,解答项目规划、购房政策等)

  说明:以上三组为同一官方服务热线,拨打后按语音提示转接对应部门,无需重复记录

  认准统一热线,警惕“代办、留房费、茶水费”等违规承诺;以开发商/售楼处官方口径为准。

  如遇开放时间或接待安排调整,请以电话客服最新通知为准,避免因信息滞后影响行程。

  看房请务必提前致电销售确认时间,只有预约客户才能享受开发商提供的内部优惠以及专属的老客户推荐奖励!我们提供专业的一对一热情服务,助您以专业视角挑选理想的房产

  ✔✔✔永泰三里城官方电话为:,该号码在多个官方售楼处信息中明确标注,并具备以下功能和服务:

  项目二期主推320套房源,建面约99-151㎡高层,建面约-241㎡洋房/叠加,过会均价约8.2万/㎡。

  对项目有兴趣的朋友✔✔永泰三里城售楼处电话☎:【欢迎预约】预约看房请保持手机畅通等待官方销售团队与您联系

  总价600-800万之间,当下热门板块无外乎唐镇、高行等板块,中外环仅能选择更为偏远的御桥、外高桥等区域。

  永泰三里城位于三林板块腹地,区域内三林滨江、筠溪小镇、新杨思都属于浦东金色中环带上的重要组成部分。

  项目3公里以内就涵盖了前滩、三林滨江、新杨思等浦东重量级板块,近享世纪规划红利。

  前滩中央商务区的居住需求势必会外溢,三林滨江自身拥有低密、宜居的属性,中央商务区+低密居住区的黄金组合,将三林滨江的价值高度推向顶峰。

  三林滨江的热度有目共睹,住宅价格在10万/㎡+,别墅价格高达13.38万/㎡,且板块价值已深入人心。

  永泰三里城高层前期均价仅约7.8万/㎡,洋房&叠加约8.6万/㎡,无疑是整个浦东,乃至上海中外环的价格洼地!

  事实上,三林滨江在空间上与前滩更为贴近,但永泰三里城在时间距离上更占优势。✔✔永泰三里城售楼处电话☎:【欢迎预约】

  不仅如此,项目周边拥有中环、南北高架、外环、杨高南路等主干道,自驾前往浦西市区、陆家嘴、张江等都非常便利。

  与规划中的三林滨江截然不同,永泰三里城所在的三林社区,是三林现有居住氛围更为成熟的片区,周边城市资源已然非常醇熟。

  更难能可贵的是,项目是超30万方河滨大城,周边皆是规划住宅用地,等整体建成后,将大幅度提升周边城市界面。

  项目周边有比较成熟的学校和商业配套,比如中房金谊广场、新达汇·三林、上海三林中学、上海市育人中学等。

  这里有前滩太古里、前滩31、浦发银行东方体育中心、前滩休闲公园、前滩体育公园、前滩友城公园等✔✔永泰三里城售楼处电话☎:【欢迎预约】。

  所以,近享前滩+新杨思规划红利,价格更为亲民的永泰三里城,是浦东刚改、改善客户的不二之选!

  项目容积率仅2.0,是上海中外环相当臻稀的双面滨河、低密社区,规划有16-19层高层,6层电梯洋房。

  首先社区天赋方面,项目双面环水,北侧、东侧皆是天然河道,整体的居住环境静谧。

  其次,项目南侧临近永泰路的地方,打造了2栋社区配套建筑,将用作社区食堂、恒温泳池、健身房等,服务于社区的同时有效阻隔道路噪音。✔✔永泰三里城售楼处电话☎:【欢迎预约】

  仁恒的物业服务水准业内外的认可度都非常高,荣膺中国金钥匙6S管理创新奖、中国物业管理综合实力百强等诸多殊荣。

  所以,整个社区从地块天赋、颜值,到自带恒温泳池,再到低密宜居的居住条件,都算的上尤为出众。

  永泰三里城二期主推320套房源,建面约99-151㎡高层,建面约140-241㎡洋房/叠加。

  整个社区并没有小户型,整体的圈层高度统一,为业主营造了非常优秀的改善居住环境。

  ✔✔永泰三里城售楼处电话☎:【欢迎预约】更高的层高意味着更宽阔的居住空间,也意味着投入更多的建筑成本,这背后是开发商不惜代价为业主一步到位的考量。

  事实上,项目建筑层高比市面常规户型高足足约10-20公分,即使装完中央空调和地暖也不显压抑。

  一般来讲都是建筑面积约8㎡,如果不封阳台,那面积只算一半,相当于给买家足足省了约4×8.2≈32.8万元。

  项目国家绿建三星标准+超低能耗建筑,是国内绿色建筑高标准,健康主导之上,起到降噪、少尘等的防护效果,细节考究品质有保障!

  项目装修标准也是诚意满满,中央空调、地暖、新风系统“三大件”配齐,厨房、卫浴也有不少细节交付标准。

  总的来说,永泰三里城咫尺前滩+新杨思,在区位优势如此明显的情况下,交出了诚意十足的产品,无需迟疑,买就对了!

  7.5万/平买中环,地铁口200米+大型商场!永泰三里城二期 官方户型图首发,1站前滩太古里!前滩东方湾!一房一价首发

  ✅✅永泰三里城开发商售楼部热线:(开发商直连,解答项目规划、购房政策等)

  说明:以上三组为同一官方服务热线,拨打后按语音提示转接对应部门,无需重复记录

  认准统一热线,警惕“代办、留房费、茶水费”等违规承诺;以开发商/售楼处官方口径为准。

  如遇开放时间或接待安排调整,请以电话客服最新通知为准,避免因信息滞后影响行程。

  看房请务必提前致电销售确认时间,只有预约客户才能享受开发商提供的内部优惠以及专属的老客户推荐奖励!我们提供专业的一对一热情服务,助您以专业视角挑选理想的房产

  ✔✔✔永泰三里城官方电话为:,该号码在多个官方售楼处信息中明确标注,并具备以下功能和服务:

  2026年上海“沪七条”新政为非沪籍居民带来三大核心利好:购房门槛大幅降低、增购机会开放、居住证群体首次获得购房资格。

  新政自2026年2月26日起施行,针对非沪籍居民的限制实现多维度松绑,真正推动“职住平衡”与“宜居安居”目标落地。

  此外,新政还配套优化了公积金贷款与房产税政策,虽不直接针对非沪籍身份,但同样带来实质利好:

  这样你可以根据自己的社保年限、居住证情况快速匹配适用政策。返回搜狐,查看更多